Westbourne Street, Hove, East Sussex, BN3 5PF

  • Offers In Excess Of £325,000
Westbourne Street, Hove, East Sussex, BN3 5PF
Sold STC
Westbourne Street, Hove, East Sussex, BN3 5PF
Westbourne Street, Hove, East Sussex, BN3 5PF
  • Offers In Excess Of £325,000

Overview

  • Basement
  • Property Type
  • 1
  • Bedroom
  • 1
  • Bathroom

Description

Westbourne Street, Hove – Lower Ground Floor Apartment with East-Facing Garden getting lots of sunlight.

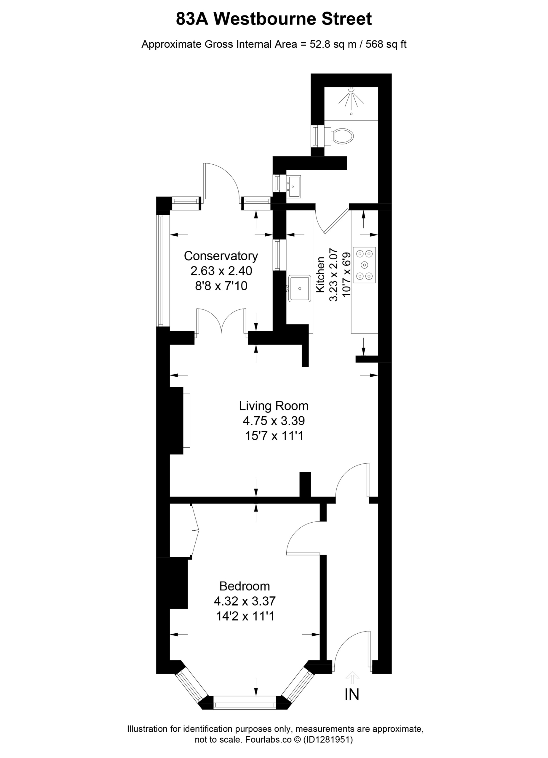
Situated on the popular Westbourne Street, this spacious one-bedroom lower ground floor apartment offers the rare combination of a private street entrance, share of freehold and a private east-facing garden, all within easy walking distance of the seafront and excellent local amenities.

The property is approached via its own private entrance, opening into a hallway that leads through to a well-proportioned living room. The living space has a comfortable, sociable feel and connects well with the rest of the home, making it an ideal layout for entertaining.

To the rear of the property is a separate kitchen with good worktop and storage space. The living room then also leads through to a bright conservatory which works perfectly as a dining area or home office. Double doors from the conservatory open directly onto the private east-facing garden, creating a lovely indoor-outdoor flow and an ideal spot for morning sun.
The double bedroom sits to the front of the property and features a bay window and good proportions, while the bathroom is positioned to the rear of the flat.

The apartment has a total approximate internal area of 52.8 sq m and, while positioned on the lower ground floor, the layout and natural light mean it feels spacious and far from a typical basement apartment.

The location is a real highlight. Westbourne Street is a quiet one-way road with a strong community feel, where residents enjoy annual street parties and a friendly neighbourhood atmosphere. Despite the peaceful setting, everything is within easy reach – including local bus routes, Hove railway station with its direct trains to London Bridge, London Victoria and Brighton and the vibrant seafront.

The beach and promenade are just a short stroll away, along with popular spots such as Babble, where many residents spend summer evenings enjoying the growing selection of seafront bars and restaurants.

With its share of freehold, private entrance, garden and generous living space, this property represents an excellent opportunity to acquire a well-located home in one of Hove’s most desirable neighbourhoods.

Key features:
• One bedroom lower ground floor apartment
• Share of freehold
• Private street entrance
• East-facing private garden
• Living room and separate kitchen
• Conservatory / dining space opening to garden
• Quiet one-way street with strong community feel
• Walking distance to the seafront, station and local amenities
• 568 sq ft / 52.8 sq m

Property Documents

EPC Rating Graph

Floor Plans

Floorplan
image

Description:

Book to view this property

Your information

Similar Listings

Compare listings

Compare
Joey Hansen
  • Joey Hansen

Thank you for signing up and referring a friend

Your details have been submitted successfully.

FINANCIAL SERVICES

Finding a mortgage

Buying a house is a massive investment and getting it just slightly wrong can be costly. Unless you have big savings, chances are you’re going to have to get a mortgage. It’s a loan secured against the property which means if you can’t meet the repayments the lender may repossess your home and sell it to get their money back.

The better you understand mortgages and everything to do with them, the better armed you will be to get the very best deal. With MMR in place, you’ll need to review your finances themselves before approaching possible lenders to see whether you can afford the monthly payments now and if interest rates go up, which they will…

What is MMR?

When it comes to finding a mortgage you have several options: mortgage brokers, individual banks or searching online. Again, it’s important to do your research. Searching online first, gives you a good idea of what’s available, but an independent mortgage broker can provide a more in-depth search and help you through the process. Being independent holds great value as they are not bias to any particular lenders or deals, they will give you their honest opinion and take away the stress of working your way through the mortgage market, they work for you to find you the best package to suit your requirements.

For more information on the current mortgage rules and deals, contact your local branch today to arrange an appointment.

Thank you for requesting a valuation.

We will be in touch shortly.

VIRTUAL APPOINTMENTS

View your future home or get your instant valuation using the latest video calling technology and the expertise of our agents. Don’t delay the deal: get an accurate and fast valuation done today.